Investieren, wo andere wohnen möchten – Kapitalanlage in Radebeul

01445 Radebeul, Mehrfamilienhaus zum Kauf

Kontaktdaten

Objektdaten

  • Objekt-ID
    1120
  • Objekttypen
    Haus, Mehrfamilienhaus
  • Adresse
    01445 Radebeul
  • Etagen im Haus
    3
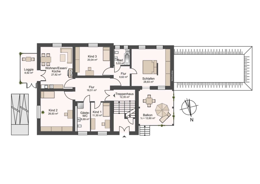
  • Wohnfläche ca.
    453,93 m²
  • Grund­stück ca.
    870 m²
  • Zimmer
    13
  • Schlafzimmer
    10
  • Badezimmer
    3
  • Baujahr
    1960
  • Letzte Modernisierung
    1960
  • Ausstattung
    Standard
  • Stellplätze gesamt
    3
  • Käufer­provision
    3,57 % inkl. MwSt. auf den Kaufpreis
  • Preis
    auf Anfrage

Ausstattung / Merkmale

  • ✓ Gäste-WC
  • ✓ Keller

Objekt­beschreibung

Beschreibung

Entdecken Sie diese märchenhafte Immobilie in Radebeul, ein charmantes Mehrfamilienhaus, das ideale Kapitalanlageobjekt für anspruchsvolle Investoren. Dieses beeindruckende Gebäude bietet insgesamt 13 Zimmer auf 3 Etagen und ermöglicht individuellen Ausbau nach Ihren Wünschen, da der Ausbau bereits genehmigt ist. Aktuell ist diese Immobilie unsaniert.

Highlights dieser einzigartigen Immobilie:

  • Großer Garten, der zum Verweilen einlädt und individuell nutzbar ist
  • Schöne Wohnatmosphäre mit viel Platz und Licht
  • Authentische Fachwerkelemente an den Balkonen, die für einen besonderen Charme sorgen
  • Viel Potenzial für individuelle Gestaltung und Modernisierung
  • Ausbau genehmigt, Grundrisse für evtl. Etagenwohnungen liegen vor und können genutzt werden

Dieses Mehrfamilienhaus in Radebeul bietet nicht nur eine solide Kapitalanlage, sondern auch die Möglichkeit, Ihre persönliche Note einzubringen und die Immobilie zu einem echten Zuhause zu machen. Nutzen Sie diese einmalige Gelegenheit und sichern Sie sich dieses besondere Anlageobjekt.

Ausstattung

  • Fachwerkelemente an den Wintergärten
  • 3 Etagen ausbaubar zu 3 Wohnungen mit je 3–5 Zimmern
  • Bauvorhaben bereits genehmigt, Grundrisse aber noch anpassbar
  • Attraktive Vermietungslage nach Umbau in mitten von Radebeul

Sonstiges

Die Angaben zum Objekt stammen vom Vermieter/Eigentümer und dienen einer ersten Information. Für Richtigkeit und Vollständigkeit wird keine Haftung übernommen. Zwischenvermietung / -verkauf vorbehalten.

Wir können Ihnen weitere Wohnungen und Häuser in Dresden, Radebeul und dem Umland zur Miete oder zum Kauf anbieten. Nennen Sie uns Ihre Wünsche, und wir sind bemüht, die passende Immobilie für Sie zu finden.

Wenn Sie sich für den Erwerb einer Immobilie als Selbstnutzer oder Kapitalanleger interessieren beraten wir Sie gern.

Wir sind Ihnen auch bei der Findung eines Nachmieters für Ihre aktuelle Wohnung oder beim Verkauf Ihrer Immobilie behilflich.

Kontaktieren Sie uns gern!

Lage

Die Stadt Radebeul liegt am südlichen Stadtrand von Dresden in Sachsen. Sie ist bekannt für ihre malerischen Weinberge, historischen Villen und die Nähe zur Elbe. Die Immobilien in Radebeul sind aufgrund der attraktiven Lage und der guten Infrastruktur sehr begehrt.

Die Stadt ist in mehrere Stadtteile gegliedert, die jeweils ihren eigenen Charme haben. Zu den beliebtesten gehören die Stadtteile Altkötzschenbroda, Niederlößnitz und Oberlößnitz. Hier finden sich viele denkmalgeschützte Villen und Häuser im Jugendstil, die von großzügigen Gärten umgeben sind. Die Wohnlagen in diesen Stadtteilen sind besonders ruhig und grün.

Einkaufsmöglichkeiten, Schulen und Kindergärten sind in Radebeul gut vertreten. Auch für Freizeitaktivitäten gibt es ein breites Angebot, wie zum Beispiel das Karl-May-Museum, die Lößnitzgrundbahn oder zahlreiche Wander- und Radwege entlang der Elbe und durch die Weinberge.

Die Verkehrsanbindung ist ebenfalls sehr gut. Mit der S-Bahn gelangt man in ca. 20 Minuten in die Dresdner Innenstadt und auch die Autobahnen A4 und A17 sind sehr schnell zu erreichen.

Insgesamt bietet Radebeul eine hohe Lebensqualität und ist daher eine attraktive Stadt für Familien, Paare und Singles, die ein ruhiges und idyllisches Zuhause in der Nähe einer größeren Stadt suchen.

Die dargestellte Position der Immobilie ist nur eine ungefähre Angabe.

Direktanfrage

* Pflichtangaben
 SSL-verschlüsselt
Darstellung der Immobilien mit WP-ImmoMakler und Daten aus